TESA Global pánikzár GL3S 1200mm szürke
Nincs készleten.Külső raktárunkban elérhető.
Kiszállítás 2 - 4 munkanap
Online ár
148 990 Ft ÁFÁ-t tartalmaz
Házhoz szállítás esetén a várható kiszállítás:
07/05/2026
TESA Global GL3S pánik rúdzár – 3 pontos zárás,
A TESA Global GL3S pánik rúdzár a Global sorozat legmagasabb biztonsági szintet képviselő megoldása, amely 3 pontos zárással (felül, alul és előre) biztosít stabil, megbízható és szabványosított ajtórögzítést vészkijárati és nagy forgalmú bejárati ajtókhoz. A világszerte elismert TESA spanyol gyártó prémium terméke, amely megfelel az európai előírásoknak, így ideális választás közintézmények, ipari létesítmények, bevásárlóközpontok és modern üzleti környezetek számára.
Fő előnyök
- 3 pontos zárás (felül, alul és előre) – maximális stabilitás és biztonság
- EN 1125 tanúsítvány – megfelel a menekülőútvonalakra vonatkozó európai szabványnak
- Prémium TESA minőség – hosszú élettartam, ipari terhelhetőség
- Univerzális szerelhetőség – jobbos és balos ajtókra egyaránt
- Modern, letisztult design – esztétikus megjelenés bármilyen ajtótípuson
Termékleírás
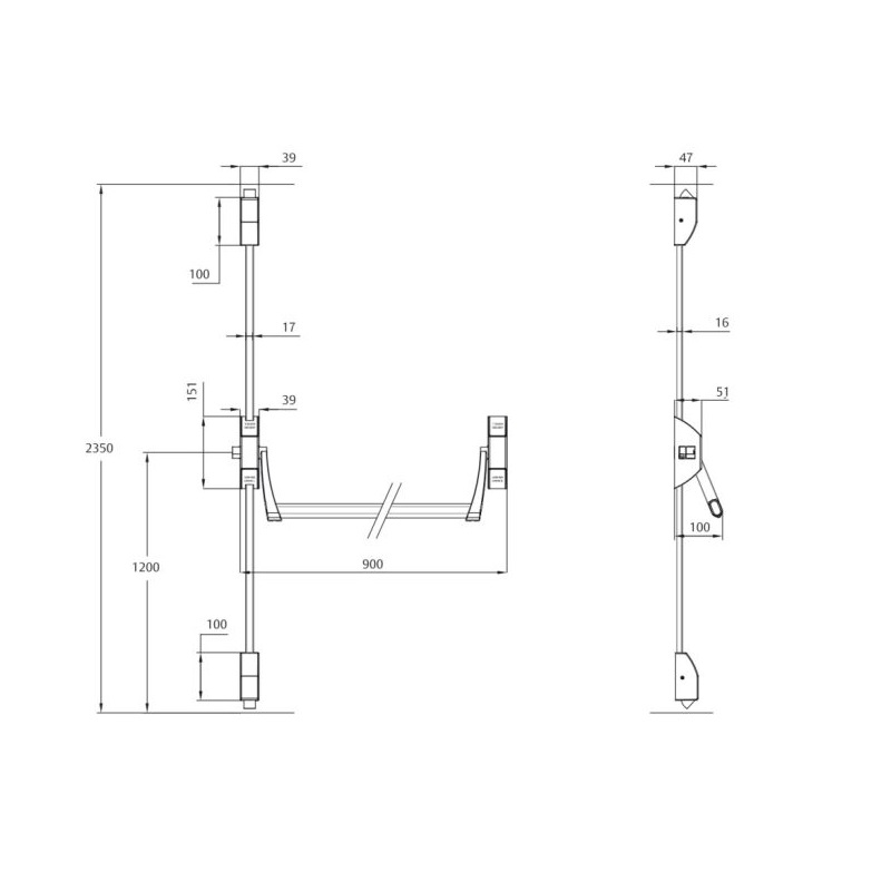
A TESA Global GL3S pánikzár rászegzős kivitelű, hárompontos zárási rendszerrel készült: felül és alul függőleges rudazattal, valamint előre irányuló zárnyelvvel rögzíti az ajtót. Ez a kialakítás kiemelkedő stabilitást és fokozott védelmet biztosít a hagyományos egy- vagy kétpontos rendszerekkel szemben.
Alapmegoldásként egyszárnyú ajtókra, illetve kétszárnyú ajtók aktív szárnyára szerelhető. A rendszer méretre vágható, így könnyedén illeszthető akár 230 cm magas és 130 cm széles ajtókhoz is.
A keskeny talpak (151 x 39 x 51 mm) lehetővé teszik az univerzális felszerelést fa-, fém- és üvegajtókra is, megfelelő szerelőkészlet alkalmazásával. A masszív mechanika 200.000 működési ciklusra tervezett, így hosszú távon is megbízható megoldást nyújt intenzív használat mellett.
Műszaki jellemzők
- Kivitel: rászegzős pánikzár
- Zárás: 3 pontos zárás (felül, alul rudazattal, előre zárnyelvvel)
- Ajtótípus: egyszárnyú ajtók, kétszárnyú ajtók aktív szárnya
- Maximális ajtómagasság: 230 cm
- Maximális ajtószélesség: 130 cm
- Szín: ezüst (egyedi színek rendelhetők, hosszabb szállítási idővel)
- Szabvány: EN 1125 : 3 7 6 B 1 3 2 2 A A
- Tartósság: 200.000 működési ciklus
- Tengely: 8 mm
- Szerelhetőség: átfordítható kivitel (jobbos-balos nélkül)
- Üvegajtóra is szerelhető megfelelő kiegészítőkkel
- Opcionális: mikrokapcsoló, külön vízszintes és külön függőleges rúd, rövidebb változat keskenyebb ajtószárnyakhoz
Külső oldali működtetés opciók ( Opcionális, NEM tartozék )
- Zárbetétes megoldás: fél zárbetéttel, MMODMBSCGR kilinccsel vagy MMODPBSCGR forgatható gombbal
- Zárbetét nélküli megoldás: E1910 csak címke (nincs bejárás), vagy S1913 címke és kilincs (átjáró ajtó)
Felhasználási területek
- Menekülési útvonalak és vészkijáratok
- Közintézmények
- Bevásárlóközpontok
- Ipari és logisztikai létesítmények
- Irodaházak és üzleti központok
- Társasházak és közösségi terek
Miért válaszd a TESA Global GL3S pánik rúdzárat?
A TESA Global GL3S a legjobb választás, ha a legmagasabb szintű biztonságot és ajtóstabilitást keresed. A hárompontos zárás, a szabványosított kialakítás és a spanyol TESA gyártó prémium minősége garantálja, hogy hosszú távon is megbízható, professzionális megoldást kapsz.
Válaszd a TESA Global GL3S pánik rúdzárat, ha kompromisszummentes biztonságra és modern megjelenésre van szükséged vészkijárati ajtókhoz!
Szállítás
Személyes átvétel:
Amint összekészítettük a rendelését, elektronikus levél formájában küldünk egy értesítést.
Rendelése 3 munkanapig átvehető üzletünkben.
Üzletünkben lehetősége van készpénzzel, illetve bankkártyával is fizetni.
Üzletünk címe: 1136 Budapest Pannónia utca 19.
Nyitvatartás
- Hétfő 8:00-17:00
- Kedd 8:00-17:00
- Szerda 8:00-17:00
- Csütörtök 8:00-17:00
- Péntek 8:00-17:00
- Szombat-Vasárnap : ZÁRVA
GLS futárszolgálat:
A ZárCézár Webáruházban megrendelt csomagokat logisztikai partnerünk a GLS futárszolgálat szállítja házhoz munkanapokon 8-17 óra között meghatározatlan időpontban.
A GLS tájékoztatja a címzettet a csomag kézbesítésének reggelén. A szöveges üzenet tartalmazza a csomag azonosítószámát és a kézbesítés várható idejét.
Ha a csomag várható érkezése előreláthatólag nem megfelelő akkor a továbbiakban a futárszolgálattal tud újabb időpontot egyeztetni a GLS ügyfélszolgálati telefonszámán, a csomagszámra történő hivatkozással. Amennyiben a csomag kézbesítése akadályba ütközik, a futár a megadott címen hagyott értesítő nyomtatványon tájékoztatja az első kézbesítési kísérletről. Az első kiszállítási kísérlet meghiúsulása esetén a második kézbesítési kísérlet díjmentes.
Ha a csomag nem kézbesíthető, akkor azt a GLS maximum 5 munkanapig a körzeti depóban tárolja, ennek lejárta után a csomagját külön jelzés nélkül visszaszállítják a cégünk részére.
Átvétel megtagadása esetén a GLS nem végez második kézbesítési kísérletet, a csomagot visszaszállítja a ZárCézár Kft. részére.
Szállítási költség:
- 40.000 Ft alatt 1490 Ft.
- 40.000 Ft. Felett Ingyenes
GLS csomagpont:
A GLS SMS-ben és/vagy e-mailen értesíti Önt a csomagfeladás után. A csomagot az értesítést követő munkanaptól számítva 5 munkanapon belül veheti át érvényes személyi okmány bemutatásával.
Az utánvét fizetési lehetőség minden átvételi ponton megoldott, valamint bankkártyával is fizethet számos üzletben, amelyek címeit a GLS CsomagPont lista tartalmazza.
Szállítási költség:
- 40.000 Ft alatt 1390 Ft.
- 40.000 Ft. Felett Ingyenes
Foxpost
A FOXPOST egy egyszerű és időtakarékos csomagátvételi mód. Kérd megrendelésed bármely FOXPOST csomagautomatába, így nem kell egész nap várni a futárt. A bevásárlóközpont nyitvatartási idejében bármikor átveheted a megrendelt termékeidet. Amint megérkezik a csomagod, a FOXPOST sms-ben küld értesítőt és egy egyedi kódot, mellyel 3 napig átveheted. Fontos: az automatáknál csak bankkártyával tudsz fizetni.
Szállítási költség:
- 40.000 Ft alatt 1390 Ft.
- 40.000 Ft. Felett Ingyenes
Maximális csomagméret:
- 60cm x 36 cm x 61cm
MPL Kiszállítás : 6 -7 munkanap
MPL a Magyar Posta csomagszállítási szolgáltatása. A világ bármely szegletébe, gyorsan, kényelmesen, megfelelő áron, az egyedi igényeknek is megfelelve kínál futárszolgáltatást. 1.990 Ft szállítási díjból és 4.000 Ft adminisztrációs díjból tevődik össze.
Szállítási költség:
- 40.000 Ft alatt 5990 Ft.
- 40.000 Ft. Felett Ingyenes
Fizetés
Készpénzes:
Önnek személyes átvétel esetén lehetősége van készpénzben kifizetni a megvásárolni kívánt terméket.
Utánvét:
Amennyiben kézbesített termékek ellenértéke a szállítási költséggel együtt a csomag átvételekor szeretné kifizetni, akkor válassza a „Utánvéttel” fizetési módot. Az utánvét kezelési díja a rendelés végösszegétől függetlenül egységesen 300 Ft. A futárnál készpénzes és bankkártyás fizetésre is van lehetőség, GLS csomagpontokon csak a megjelölt helyeken lehet bankkártyával fizetni.
Bankkártyás fizetés ( online )
Díjmentes fizetési megoldás! A kényelmes és biztonságos online fizetést a Barion Payment Zrt. biztosítja. MNB engedély száma: H-EN-I-1064/2013. Bankkártya adataihoz áruházunkhoz nem jutnak el.
Fizetés banki átutalással
Fizetés közvetlenül a bankszámlánkra. A megjegyzés rovatban tüntessük fel a rendelésszámot. A kiszállítás az összeg beérkezését követően történik.
A kiszállítást akkor indítjuk meg, amint a bankszámlánkra jóváíródott a megrendelés összege. Ne felejtsd el a közlemény rovatba beírni a rendelésed azonosítóját, melyet a megrendelésedhez küldött rendszer üzenetben találsz.
Fontos! A leadott megrendeléseket 3 munkanapon keresztül tartjuk, ez idő alatt van lehetőséged az átutalás teljesítésére. A ki nem fizetett megrendelések 3 munkanap után automatikusan visszamondásra és törlésre kerülnek.
Számla neve: ZárCézár Kft.
Számlaszám: 11713005-20614784
Bank neve: OTP Bank Nyrt.
IBAN: HU80117130052061478400000000
BIC / Swift: OTPVHUHB
